天边的云

天边的云
阿制Thanks BLUES for authorizing the publication of the project on mooool, Text description provided by BLUES.
蓝调国际:此刻,我们所考虑的,是必须构思出尊重自然、亲近自然,创造 “为此地而生的设计”。——伊东丰雄
BLUES: “At this moment, what we are considering is the necessity to conceive a design that respects and embraces nature, creating something that is born for this place.”
▽苍山雪,洱海月 Cangshan snow, Erhai moon
01 起 °- 叙述:关于一个天边的云,在大理的故事 Narration: The Tale of a Distant Cloud in Dali
“天边的云”,一个不符合商业逻辑的项目,如果只看她是一个民宿项目的话,你会读不懂她。如果要读懂 “天边的云” 首先要了解主理人老张,了解老张的人,就不会奇怪为什么会有这么奇特的项目,可以说 “云” 是他一生挚爱的人和事业,也可以理解 “云” 是他的个人回忆录。
也或许是老张三十年景观设计生涯的未完的梦,是他对于设计之路探索的梦想,他不断的激活对梦想的想象,并且永远有着热情不倦的去践行梦想的勇气,“天边的云” 也许是他接下来的设计匠人之路的再次远行,这里,他有很多故事讲给你听。
“Clouds on the horizon”, a project that does not conform to commercial logic, if only look at her as a homestay project. You won’t be able to read her. If you want to understand the “horizon of the cloud” first to understand the master Lao Zhang, understand Lao Zhang’s people, will not wonder why there is such a strange project, it can be said that “cloud” is the love of his life and cause, can also understand that “cloud” is his personal memoir
Perhaps it is the unfinished dream of Lao Zhang’s thirty years of landscape design career, his dream of exploring the design road, his constant activation of the imagination of the dream, and always have the courage to practice the dream with enthusiasm, “clouds in the sky” may be his next design craftsman’s road again, here, he has a lot of stories to tell you.
▽“一朵云的演变””The Evolution of a Cloud”
区位关系 Spatial Positioning Relationship
大理海东方别墅,云南省大理白族自治州洱海东,梦云南 · 海东方别墅群内。
Located in the east of Erhai Lake, Dali Bai Autonomous Prefecture, Yunnan Province, within the Dream Yunnan · East Sea Villas community.
▽项目区位 Project location
海景度假 Seascape Vacation
远处的苍山、古城村落与洱海在眼前连成一片,这里是整个洱海绝版的观海、观山的绝佳地理位置。
The distant Cangshan Mountains, ancient village settlements, and Erhai Lake merge into a harmonious panorama before your eyes. This is a unique geographical location offering an unparalleled vantage point to appreciate both the sea and mountains of the entire Erhai Lake.
民宿逐层退降呈悬岸式布局,面朝洱海。在 5 层楼的空间内,仅做了 5 个房间,每个房间都能感受到全景海天一色她像是立体的 “空中花园”。
The guesthouse is designed with a stepped layout,cascading down like suspended terraces, all facing Erhai Lake.Within the five-story structure, only five rooms have been crafted, ensuringeach room offers an unobstructed panoramic view of the sea and sky.It’s akin to a three-dimensional “sky garden.”
▽手绘图 Hand-drawn illustration
[自然沉浸 X 极致追求 X 松弛之境] Natural Immersion X Ultimate Pursuit X State of Relaxation
布沃克复古机车,1000 多棵雨林植物花园,悬崖生态庭院 [健身中心]「日时夜影」主理餐饮酒吧,全球限量 KEES SLIM JIM 顶级咖啡机 大理 ONLY ONE,开启颠覆性的时髦奢野生活方式。
Bwook Retro Motorcycle Over 1000 Rainforest Plants in the Garden Cliffside Ecological Courtyard [Fitness Center] “Sunrise to Sunset” Culinary Bar Global Limited Edition KEES SLIM JIM Premium Coffee Machine, Only One in Dali Embark on a Subversive Chic and Luxurious Wild Lifestyle.
02 融 °- 设计定格局 - 叙述:自然为底色,内外空间高度融合 Nature is the background color, and the interior and exterior Spaces are integrated
“内部空间不能独立于外部,内外空间是一种无间流动的关系,如果这两者是相互分离的,整体性便荡然无存”。——弗兰克 · 劳埃德 · 赖特
“The internal space cannot exist independently, from the external image; the internal and external spaces are, in a continuous and seamless relationship. If these two,are separated from each other, the integrity of the whole is lost.”
▽顶楼(5F)公共活动区 Top Floor (5F) Public Activity Area
通过外部的循环,获得绿色、生机、高效的环境空间,以此达到建筑与人与自然生态和谐相处的目的。
Through the external circulation, a green, vibrant and efficient environmental space is obtained, so as to achieve the purpose of harmonious coexistence between architecture, human and natural ecology.
▽天边的云 / 时光之影 “Clouds on the Horizon / Shadows of Time”
▽手绘图 Hand-drawn illustration
把景观无限延伸 Extending the Landscape Infinitely
为了丰富度假生活体验,把最美的视线留给公区,是艺术崇高的精神理想,也是生活里朴素的践行态度。
To enrich the holiday living experience, reserving the most beautiful views for public areas is an embodiment of artistic loftiness and a simple approach to living.
极致窗景 Ultimate Window Views
将室内空间和室外自然打通,让窗外的景观仿佛成了室内的天然画卷,带来 “无边界”,通透轻盈的体验。
Integrating indoor spaces with the outdoor natural environment, allowing the exterior views to become a natural canvas within the interior. Creating a “boundless” experience with transparency and lightness.
北极熊大沙发”Polar Bear Grand Sofa”
源于一只北极熊在浮冰的躺姿,让你很容易放松下来,亲近它,满足对于舒适性和放松感的愿望。
Inspired by a polar bear’s lounging posture on ice floes, it effortlessly helps you relax. Getting close to it satisfies the desire for comfort and a sense of relaxation.
270° 全景视野 270-degree Panoramic View
空间中不同的材质相互碰撞,散发出原生却细腻的气息,营造洗尽铅华回归本质的设计境界。
Various materials in the space collide, emitting a raw yet, intricate ambiance. Creating a design realm that washe
03 转 °- 叙述:圆弧形 “拱” 的空间漫游 Narration: Roaming through the Arched Space
弧线 °,是最美的语言 The curve, with its graceful arcs, speaks the most beautiful language
拱形门,在罗马建筑中非常常见,弧线拱形的协调,有着一种独特的、百看不腻的永恒美感,方圆之间,增添几分浪漫的情调和感性的情怀。
The arched doorway is a common feature in Roman architecture. The harmonious curves hold a unique and timeless beauty that never tires the eyes. Between the realms of square and circle, it adds a touch of romantic sentiment and emotional attachment.
▽将直线和曲线完美融合,以完美的弧度诠释几何之美 Blending straight lines and curves seamlessly, using perfect arcs to interpret the beauty of geometry
▽3F 公共活动区轴测图 3rd Floor Public Activity Area
用曲线和弧度弱化棱角的尖锐,柔化空间的视觉感受。
Using curves and arcs to soften the sharp edges, creating a visual perception that mellows the space.
每一道弧度,都是对阳光、空气和雨露的精神追求 Each curve is a spiritual pursuit of sunlight, air, and raindrops
弧线灵动,光影万千,景观通透,连续曲面墙体如曲水流觞,呼应流动的弧线,划分服务空间及被服务空间。
The curves are graceful, the interplay of light and shadow is diverse, and the landscape is transparent. The continuous curved walls flow like meandering water, echoing the fluidity of the arches. They divide the service areas from the served spaces.
拱形在空间的变化,起到延伸的作用,半圆弧 “拱” 顶部线条既圆润又舒缓。
The variations of arches in the space serve to extend and elongate.The top line of the semi-circular arch is both smooth and gentle.
室内的 “拱”,空间漫游体验。
Archways indoors provide a spatial wandering experience.
04 绿 °- 叙述:热带雨林,如生命般律动 The tropical rainforest pulses with life, like a rhythmic heartbeat.
[创意] 来源于对场地的精准把握风的动向、光的朝向、房屋的结构洱海 · 海东方,视野向西,是植物生长最繁茂的界面充分运用了朝西的自然光线,海风的温润一个独一无二的热带雨林的设想应运而生。
[Creative] Derived from a precise understanding of the location.The direction of the wind, the orientation of light,and the structure of the house.Erhai Lake, located in the eastern part, with its westward view,marks the interface where vegetation thrives abundantly.Leveraging the abundant westward natural light and the gentlewarmth of the lake breeze, a unique tropical rainforest concept comes to life.
云集 VIP 客房,生命原色之 [绿] A gathering of VIP rooms, where the color of life is [green]
为空间注入 “时间” 的概念,折叠的自然艺术不断延展,多重自然质感在时光的美妙作用下,渐渐焕发出奇妙的艺术效果。
Injecting the concept of “time” into the space, the unfolding natural art continues to expand. Multiple natural textures, under the enchanting influence of time, gradually blossom into marvelous artistic effects.
热带雨林的浪漫 The romance of the tropical rainforest
它是具象功能的外在显露,更是精神世界的向内探索,温润的肌理经大自然的勾勒、描绘、如生命般律动。
It is the external manifestation of tangible functionality, but even more so, it is an inward exploration of the spiritual world. The gentle texture, shaped and portrayed by nature, pulsates like life itself.
沉浸式氛围 An immersive atmosphere threefold beautiful tableau with distant, middle, and close-up views
藏在 [大理] 的隐秘梦境把热带雨林装进房间,形成远、中、近,三重美丽画卷。
A hidden dreamland nestled in [Dali], where the tropical rainforest is encapsulated within the room, creating a threefold beautiful tableau with distant, middle, and close-up views.
暖色调的雨林浴缸带来视觉冲力当雾生裊裊,绿意葳然,美若仙境。
The warm-toned rainforest bathtub brings a visual impact, and when mist gently rises,the lush greenery creates a scene as beautiful as a fairyland.
▽热带雨林设计施工 Tropical Rainforest Design and Construction by Levan Garden Art
05 品 °- 叙述:高端定制,精致实用主义 High-end customization entails exquisite practicality
随着罗马盘的转动,带你走进极致独特的度假生活。
As the Roman disc spins, it takes you into an unparalleled and unique vacation experience
I . 五星酒店配套,打造高品质生活体验 Five-star hotel amenities for creating a quality living experience
▽布沃克复古机车 Buwak Retro Motorcycle
II . KEES SLIM JIM 手工咖啡 KEES SLIM JIM Handcrafted Coffee
一款极具辨识度和艺术性的 “传奇” 咖啡机,复古风的硬朗外表,纯手工打造,全球限量,量身定制,诸多苛刻的标签无不彰显着这台咖啡机的与众不同。
A highly distinctive and artistic “legendary” coffee machine with a rugged retro-style exterior, entirely handcrafted, globally limited edition, and tailor-made. Numerous exacting labels only serve to emphasize the exceptional nature of this coffee machine.
▽咖啡吧台 Coffee bar
这可以是一场以咖啡为载体的旅程,优雅而浪漫。
This can be a journey with coffee as the medium, elegant and romantic.
III . 拥有高配健身房的民宿 - 可能是洱海旁独一家 A Boutique Guesthouse with a High-End Fitness Center – Possibly the Only One by Erhai Lake
室内外无界衔接的健身中心,主理人赋予了这间民宿极高的规格,以高标准要求来打造房间配套以及服务。
An indoor-outdoor seamlessly connected fitness center,hosted by the owner with the utmost attention to detail, has set exceptionally high standards for both room amenities and services at this guesthouse.
▽催生你的内啡肽 Inducing your endorphins
V . 日时夜影餐吧 / 首驻大理 Daytime to Nighttime Shadow Dining Bar / First Resident in Dali
“川湘料理” 寻味与分享,发掘出关于生活、饮食和美的全新命题。
“Sichuan and Hunan Cuisine” – Exploring and Sharing Flavors, Unearthing Fresh Perspectives on Life, Dining, and Beauty.
VI . 高配沐浴套装 High-End Bathing Ensemble
法国著名香薰品牌蒂普提克沐浴套装。
The Tiptoech Bathing Set from the renowned French fragrance brand.
06 后记 °- 关于 “时间旅人” 的诉说 A narrative about “Time Traveler
关于主理人 Regarding the host or proprietor
“天边的云” 民宿酒店主理人兼总设计师蓝调国际董事长 / CLA 西南分部首届会长西南景观设计脊梁
“我的前半生去到过 100 多个国家及地区,唯一不能忘怀的就是在大理的旅程,也许往后余生将会发现更美之地,但大理,或终将成为我的梦寐之地。作为一个景观人,我喜爱这种不经意中就能触摸到的美,而无论再去往何处, 锁住记忆的那些情景, 也停留在我们的故事里”。
“In the first half of my life, I traveled to over 100 countries and regions, but the journey in Dali is the one I can never forget. Perhaps in the years to come, I will discover even more beautiful places, but Dali may eventually become my dreamland.
As a landscape enthusiast, I cherish this beauty that can be casually touched. No matter where I go, those moments that lock memories also stay in our stories.”
▽张坪先生(老张)Mr. Zhang Ping (Lao Zhang)
故事探索
SEARCH FOR THE UTOPIA OF NATURE · 寻找自然界的乌托邦
Q&A 提问
Q: 您去过那么多地方,全世界 100 多个国家,现在能停下来的初心是什么?
走了 100 多个国家,也体验了非常多的风景,得到的结论,就是想让内心真正能沉静下心来,建一个梦想中的花园,而在这个行走中,发现大理是一块风水宝地,离故乡也不远,这里有海,有山,也有蓝天和白云,在这里,自然条件已经非常优秀了,只要稍加打磨点缀,就可以出来比较好的产品,这就是我最早要建设 “天边的云” 的初衷。
Q: 请问能解释一下 “天边的云” 的含义吗?
天边的云的含义,这个其实很简单,这是我太太 18 年前她的网名,这个名字,看着它不深奥,却又很容易辨识和记忆;我来到大理以后,我觉得这里的变化最多的是云,每天早晨、中午、晚上这个云的形态、颜色、不断的在变化,大理是一个风城,风花雪月,当风比较大的时候,云的形态就不断的在产生变化,这是我每天从早晨观察到晚上,这里的非常大的一个特色,所以,这其实就是它的名字由来。
它带给了我很多的惊喜,洱海和苍山呢,相对于云,它变化的形式比较慢一些,所以我们说,最美的景色是在云,还不止在于海;
Q: 如果用一个词来定义这个民宿,您会如何形容?
[对话] 与天地,自然对话,引发人的情感归属和共鸣
“我们终其一生努力的意义,是为了更好的生活”,我们追求的是情感上的东西,中国人是爱热闹,爱对话的,因此我们的定位,就把 80% 的面积留给公区,与天地、与山水对话,让室内室外,完全形成了一种无边界的设计,我希望给大家传递的不仅仅是 “住” 这么一个概念,而是想传递一种新的生活方式,他是比较注重国人的情感归属和共鸣的一种度假的生活方式,让人在阔景之间感受更多的可能性;
我们民宿还有一个很重要的一个特质,就是主客人坐下来一对一的可以进行交流,可以结识不同行业,不同职业,不同年龄的各界的人,在这种思想的碰撞中,创造出来一个新的体系。
Q: 为什么会选择购买 20 万一台的咖啡机?是否考虑回报率?这在民宿中极其少见
[因为我想提供给客人最好的体验]
品味咖啡是一种放松和惬意的生活方式,而我们这个咖啡机,他其实也只是我提供这种方式的载体, 咖啡机可能只是一个物件,纯正的咖啡豆还有操作的一些工艺技术,才是咖啡最本真的一种体现。我想,在这么美好的一个环境,应该配上顶级的设备和产品,让大家在欣赏风景的同时,也能感受到很美味的惬意;
不仅仅是咖啡机,包括我们健身房的产品,它也是来自美国最顶级的设备,希望大家真正感受到,这是个很有匠心情怀的民宿,整体的配置,都是顶级的,我希望我的客人,朋友乃至家人,他们都能在这里获得最好的体验。
Q: 做民宿老板和景观设计公司老板,有什么不同? 您如何看待 [天边的云] 的发展状态?
其实做民宿和景观的价值体系都是相通的,它们其实是相互融括的关系,内在都是在创造空间,引导体验,营造一种向往的生活;
蓝调景观也走过了接近 25 年左右,我们给全国各地的一线开发商服务,为客户,业主,公共空间参与及城市的人群创造价值,其间,也应运拓展了文旅版块,而民宿,则是我们在 [大文旅探索] 版块的一个重要分项,我们在探索,能不能把我们对景观设计的研究集中在某一个点上来,让它闪光,让它一出手就是一个个的精品;
因此,我们把 [景] ,永远是放在了第一位,可以看到内外空间怎么穿插,交通如何组织,都进行了很多精致,细致的考虑; 我们也为客户做过大量民宿设计,跨越重庆,海南,大理,北京,贵阳,成都,庐山,黄山等,也期待她们未来的呈现;
在 [天边的云] ,我们绝对不是一个简单的跟随者,而是这个行业的引领者,我们希望带动这个行业朝另外一个方向发展,很欣喜的看到我们这个民宿呈现以后,有好多民宿主都来参观,而且有的民宿也跟着我们的这种思路,在开始新的践行,在这里倡导更松弛更独特的旅游度假生活方式,我想,“也许这就是我们所做的事的更大的意义和价值吧!”
▽户外花园效果图展示 Outdoor garden renderings show
业界评价 - 入住 [天边的云] 后感悟
作为一个从业三十三年的设计师,走遍全世界阅过无数民宿特色酒店。当带着全家人来到大理 “天边的云” 时,才发现由设计师用自己情怀设计经营的民宿,才是用心禅释了什么叫慵懒的时空!用海色一色和植物作为设计元素,完全抛弃了将建筑作为设计元素,而是以大自然作为设计的基本要素,让身心与风一同飘浮。
——兰京 重庆源道建筑规划设计公司总建筑师,教授级高级建筑师,国家一级注册建筑师,香港皇家注册建筑师
大理天边的云民宿是非常好的迭代升级产品,民宿功能细致齐全,设计上借景抒情,人和自然的互动关系也处理得淋漓尽致。它表达了主理人一直以来对艺术和生活完美结合的理解,也给人们工作之外的生活立了一个非常美好的标杆。
——海力空间董事长冯焕辉先生
大理是上天宠爱的地方,所以给了她最美好的风花雪月,而在天边的云新开的悬崖度假民宿,把这所有的美好以最好的方式打包给你,庭院里的四季花事,全景餐厅里的风和月,雨林浴缸里的苍山雪…… 景观大咖张坪总主理的民宿,充满了自然的浪漫主义色彩,炫目、瑰丽、融合…… 带来极致的度假体验,让人留连忘返,身心疗愈…
——四川乐道景观董事长陈亚东先生 | 现任 CLA 西南分部会长
时尚、典雅、舒适的空间气质,高品质和人性化的细节设计,呈现出张总多年的专业沉淀和生活态度,令人钦佩。
——纬图设计机构总裁高静华女士
非常感谢蓝调张坪总打造的 “天边的云” 悬崖海景度假民宿的邀请,我们有幸能够在洱海边,共同打造一个休闲度假体验空间. 共同把日时夜影餐饮也带入大理洱海边与天边的云共同 营造了 “远赴山海,抵达松弛之境” 的场景立意。相信天边的云悬崖别墅会是大理民宿新的高度,也将会是张总人生生活探索新的起点。
去往有风的地方,去邂逅一片辽阔的景色,邂逅一种理想的生活,邂逅一朵天边的云。
——犁墨景观董事长胡剑锋先生
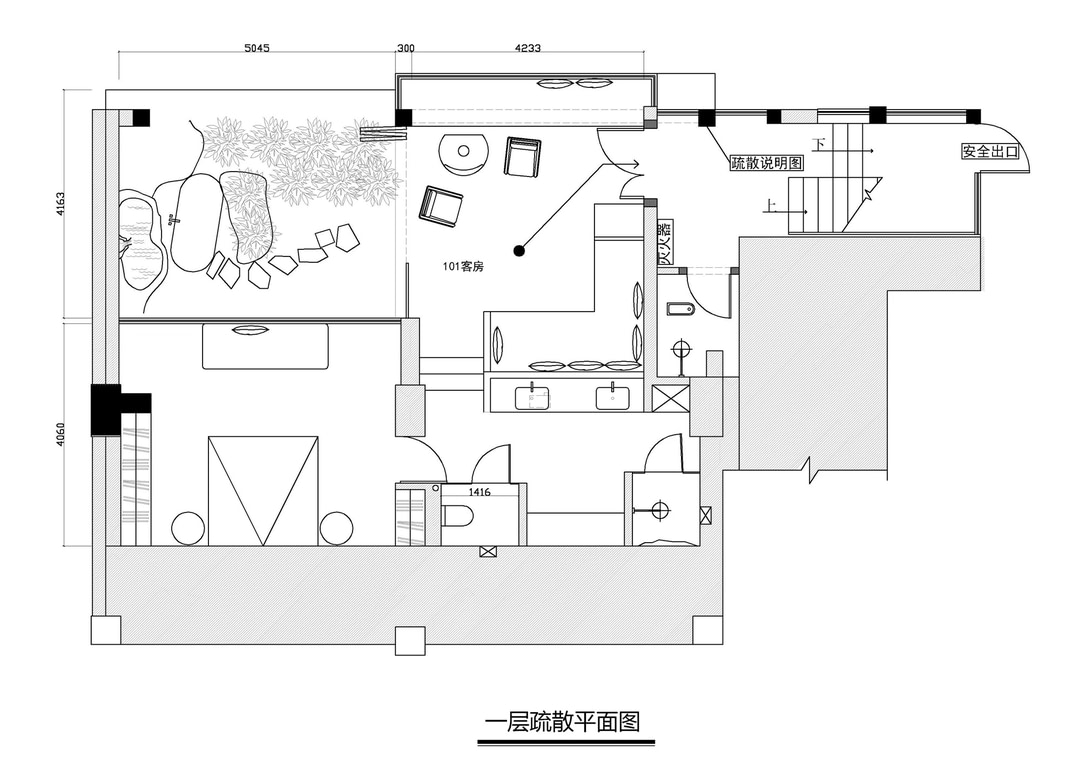
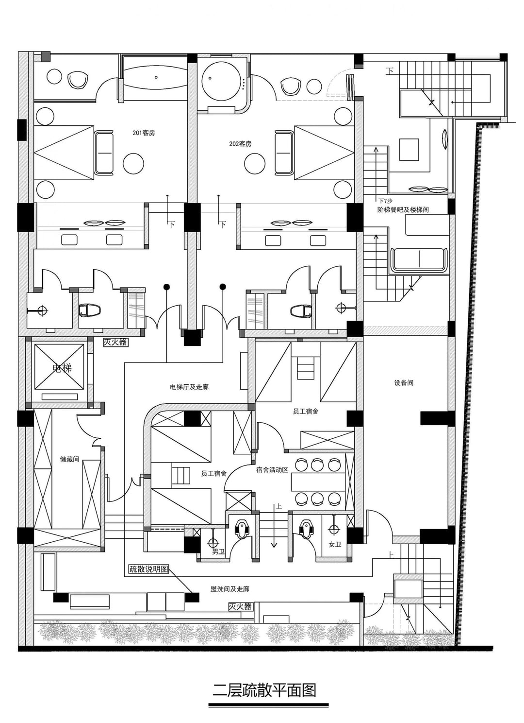
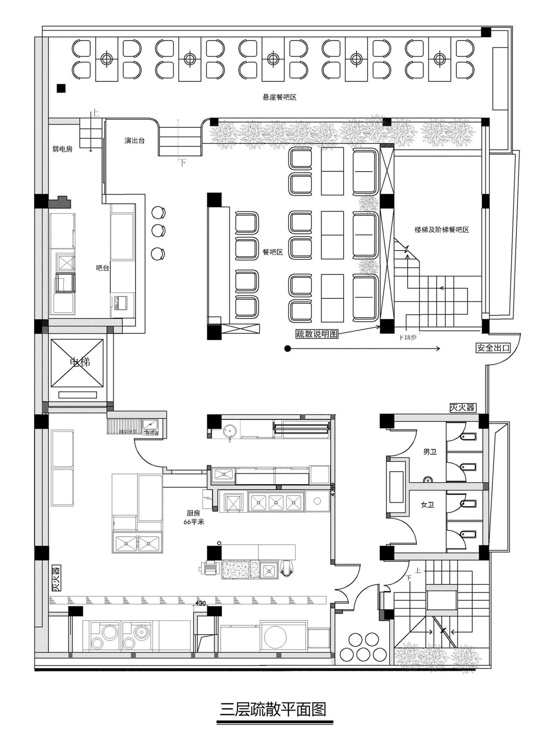
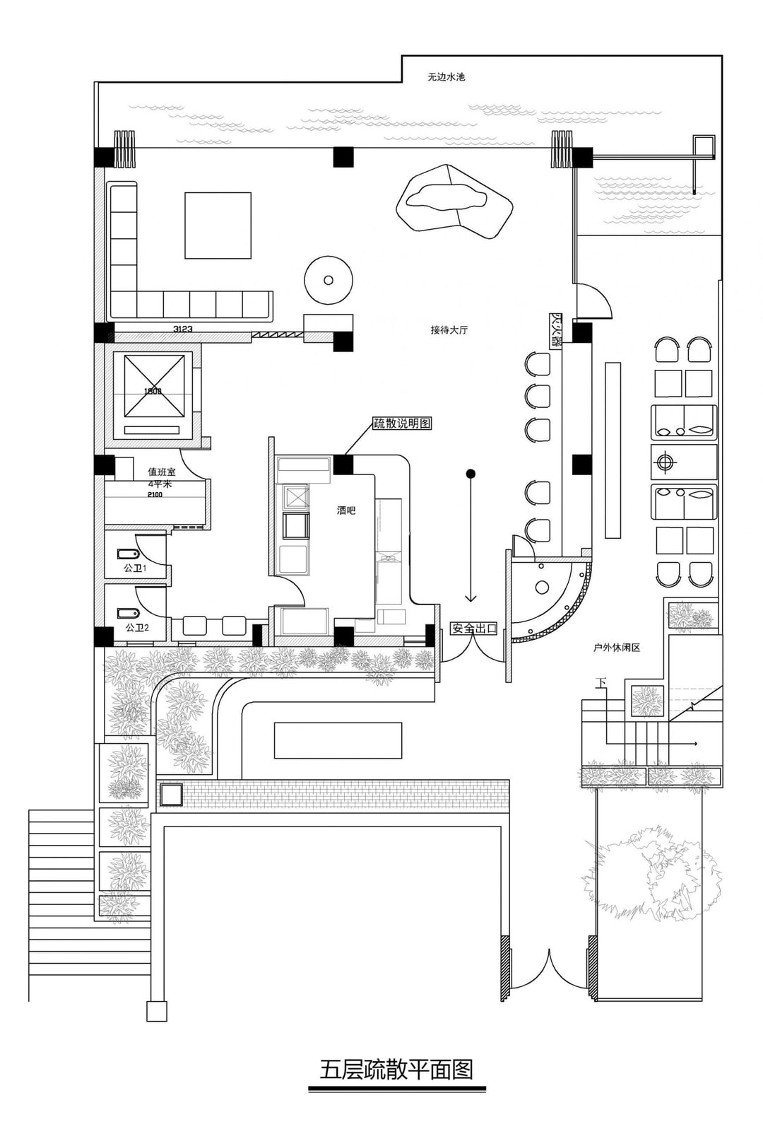
▽设计图纸 Design drawing
总策划投资:蓝调国际董事长张坪
总 体 设 计
项目总体设计:蓝调国际
项目总设计师:张坪
景观设计:蓝调国际 · 第 3 设计院
主要设计人员:任刚 姜瀛洲 龚柯 董济超
LOGO 设计:陶懿 姜瀛洲
协作设计
结构设计师:大理合一建筑设计 / 徐永刚
室内设计:张锷(自由设计师) 彭真(十仟装饰)
装饰施工:恒阁装饰 十仟装饰 西南铝装饰公司
热带雨林植物设计施工:乐梵园艺
专业餐饮:日时夜影
智能系统:重庆皇创
智能设备安装:大金空调 日立电梯 罗兰西尼门窗 德柏仕移动阳光房
科木门窗 科勒洁具 企一灯饰 欧文莱地板砖 金源木业等
特别感谢
摄影师:梵境 十七 禾锦摄影 / 雷亮 龙致江(自由摄影师)
市场推广:蓝调市场部 欣羽姐姐 乐梵园艺 梵途美宿 日时夜影
参与拍摄的模特们:琦琦 丹丹 冰冰 欣羽姐姐 小龙
Overall Project Planning and Investment:Chairman Zhang Ping of BlueNote International General Design
Total body design
Project Overall Design: BlueNote International
Project Chief Designer: Zhang Ping
Landscape Design: BlueNote International – Third Design Institute
Key Design Team Members: Ren Gang, Jiang Yingzhou, Gong Ke, Dong Jichao
Logo Design: Tao Yi, Jiang Yingzhou
Collaborative Design
Structural Designer: Dali Unity Architectural Design / Xu Yonggang
Interior Design: Zhang Luo (Freelance Designer), Peng Zhen (Shi Qian Decoration)
Decoration Construction: Hengge Decoration, Shi Wu Decoration, Southwest Aluminum Decoration Company
Tropical Rainforest Plant Design and Construction: Le Fan Horticulture
Specialized Dining: Daytime to Nightfall
Intelligent Systems: Chongqing Huangchuang
Intelligent Equipment Installation: Daikin Air Conditioning, Hitachi Elevator, Roland Schenker Doors and Windows, Debo Shi Mobile Sunshine Room, Kohler Sanitary Ware, Qi’er Lighting, Owen Lai Flooring Tiles, Jinyuan Wood Industry, and others
Special Thanks To
Photographers: Fanjing, Shiqi, Hejin Photography, Lei Liang, Long Zhijiang (Freelance Photographers)
Market Promotion: BlueNote Marketing Department, Xinyu Sister, Le Fan Horticulture, Fantu Meisu, Daytime to Nightfall
Models who participated in the photoshoot: Qiqi, Dandan, Bingbing, Xinyu Sister, Xiaolong
“ 在洱海边上的悬崖海景度假民宿,感受慵懒的美好场景。”
审稿编辑:Maggie
更多 Read more about: BLUES 蓝调国际












































































